Prywatne
Cena za m²: 4111.76 zł/m²
Rynek: Wtórny
Powierzchnia: 170 m²
Powierzchnia działki: 388 m²
Rodzaj zabudowy: Wolnostojący
Liczba pięter: Dwupiętrowy i więcej
Opis
Na sprzedaż dwupiętrowy dom o powierzchni około 170 m², położony w Krzyżu Wielkopolskim od strony Drezdenka, na działce o powierzchni 388 m². Budynek wybudowany w 2000 roku, z płaskim dachem krytym papą, ocieplony styropianem, z wełną skalną na dachu. Front domu z wystawą południową. Nieruchomość posiada nowy piec na pellet (2024), instalację CO w miedzi, kaloryfery oraz zasobnik ciepłej wody o pojemności 200 litrów z grzałką. Okna dwuszybowe, drzwi wejściowe drewniane. Ujęcie wody ogrodowej.
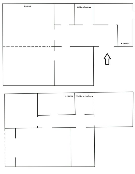
Na parterze znajdują się dwa rozkładowe pokoje oddzielone lekką ścianą działową, co daje możliwość połączenia ich w przestronny salon z miejscem na kominek. Dodatkowo jasna, otwarta kuchnia, łazienka z prysznicem (z możliwością montażu wanny), schowek pod schodami oraz kotłownia/pralnia z osobnym wejściem od zewnątrz. Na piętrze znajdują się trzy pokoje, w tym jeden z balkonem, kuchnia oraz łazienka z prysznicem, wanną i zabudowaną szafą.
Na działce znajduje się budynek gospodarczy o powierzchni około 50 m² z garażem jednostanowiskowym, przestrzenią warsztatową i dodatkowym pomieszczeniem. Obok budynku znajduje się wiata na jeden samochód.
Nieruchomość daje szerokie możliwości aranżacyjne i inwestycyjne. Istnieje możliwość wydzielenia dwóch niezależnych mieszkań (parter i piętro), stworzenia dużego salonu z kominkiem z otwartą kuchnią lub adaptacji części parteru na działalność usługową z wejściem od ulicy. To idealna propozycja dla osób szukających domu z potencjałem, który można dostosować do własnych potrzeb lub przeznaczyć pod wynajem. Księga wieczysta bez obciążeń.
Budynek gotowy do wydania.
Oferta bezpośrednio od właściciela.
Więcej zdjęć na życzenie.
Na parterze znajdują się dwa rozkładowe pokoje oddzielone lekką ścianą działową, co daje możliwość połączenia ich w przestronny salon z miejscem na kominek. Dodatkowo jasna, otwarta kuchnia, łazienka z prysznicem (z możliwością montażu wanny), schowek pod schodami oraz kotłownia/pralnia z osobnym wejściem od zewnątrz. Na piętrze znajdują się trzy pokoje, w tym jeden z balkonem, kuchnia oraz łazienka z prysznicem, wanną i zabudowaną szafą.
Na działce znajduje się budynek gospodarczy o powierzchni około 50 m² z garażem jednostanowiskowym, przestrzenią warsztatową i dodatkowym pomieszczeniem. Obok budynku znajduje się wiata na jeden samochód.
Nieruchomość daje szerokie możliwości aranżacyjne i inwestycyjne. Istnieje możliwość wydzielenia dwóch niezależnych mieszkań (parter i piętro), stworzenia dużego salonu z kominkiem z otwartą kuchnią lub adaptacji części parteru na działalność usługową z wejściem od ulicy. To idealna propozycja dla osób szukających domu z potencjałem, który można dostosować do własnych potrzeb lub przeznaczyć pod wynajem. Księga wieczysta bez obciążeń.
Budynek gotowy do wydania.
Oferta bezpośrednio od właściciela.
Więcej zdjęć na życzenie.
ID: 1022878440
xxx xxx xxx
Dodane 28 października 2025
Dom jednorodzinny
699 000 zł
do negocjacji
Lokalizacja
Krzyż Wielkopolski
Wielkopolskie