Firmowe
Cena za m²: 5400 zł/m²
Rynek: Pierwotny
Powierzchnia: 85 m²
Powierzchnia działki: 830 m²
Rodzaj zabudowy: Wolnostojący
Liczba pięter: Parterowy
Opis
Sprzedam piękny dom jednorodzinny wolnostojacy w stanie deweloperskim, trzypokojowy plus salon z aneksem, łazienka i toaleta osobno.
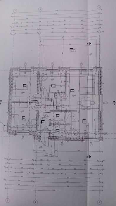
Powierzchnia nieruchomości jest bardzo dobrze wykorzystana a pomieszczenia są przestrzenne.
Salon 4,1 x5 m
Kuchnia 3,1 x3,5m
Łazienka 1,6 x2,5m
Toaleta 1 x2m
Sypialnia 3,2 x3,9m
Sypialnia 3,2 x3,5m
Sypialnia 2,6 x3,3m
Kotłownia 1,4 x2,5m
Korytarz 6,5 m2
Ogrzewanie podłogowe podzielone na trzy obwody w salonie i dwa obwody w sypialniach.
Źródło ciepła pompa 8,5 kw, średnie zużycie energii przy stałej pracy to 15-20 kw na dobę. Jest to bardzo ekonomiczne ogrzewanie, dodatkowo można zamontować panele fotowoltaiczne, które jeszcze bardziej obniżą koszty codziennej eksploatacji. Dom jest dobrze ocieplony - 20 cm styropianu na ścianach i 30 cm wełny na stropie.
Prace są prawie skończone w ciągu kilku dni przedstawię nowe zdjęcia.
Położenie nieruchomości Łabiszyn Wieś, dobry i wygodny dojazd zapewniający komfortową komunikację.
Dom jest przy drodze asfaltowej .
Działka o powierzchni 830 m2, w około domu jest dużo terenu, który można zagospodarować.
Na działce znajduje się zbiornik na ścieki, który można opróżnić bez wjeżdżania na działkę.
W okolicy powstało już kilka nowych domów, jest to małe osiedle o niezbyt ścisłej zabudowie.
Dużo terenów zielonych, rzeka w pobliżu. Widok z tarasu jest niezagrożony jakimikolwiek zabudowaniami.
Do Łabiszyna są 3 kilometry a do Bydgoszczy 22 km.
Kursuje autobus szkolny.
Wszystkich zainteresowanych zachęcam do bezpośredniego zapoznania się z ofertą i obejrzenia nieruchomości. Ponieważ nawet najlepsze zdjęcia nie pokażą tego co można zobaczyć w trakcie oglądania tego o czym marzymy, swojego domu.
Dziękuję i pozdrawiam.
Powierzchnia nieruchomości jest bardzo dobrze wykorzystana a pomieszczenia są przestrzenne.
Salon 4,1 x5 m
Kuchnia 3,1 x3,5m
Łazienka 1,6 x2,5m
Toaleta 1 x2m
Sypialnia 3,2 x3,9m
Sypialnia 3,2 x3,5m
Sypialnia 2,6 x3,3m
Kotłownia 1,4 x2,5m
Korytarz 6,5 m2
Ogrzewanie podłogowe podzielone na trzy obwody w salonie i dwa obwody w sypialniach.
Źródło ciepła pompa 8,5 kw, średnie zużycie energii przy stałej pracy to 15-20 kw na dobę. Jest to bardzo ekonomiczne ogrzewanie, dodatkowo można zamontować panele fotowoltaiczne, które jeszcze bardziej obniżą koszty codziennej eksploatacji. Dom jest dobrze ocieplony - 20 cm styropianu na ścianach i 30 cm wełny na stropie.
Prace są prawie skończone w ciągu kilku dni przedstawię nowe zdjęcia.
Położenie nieruchomości Łabiszyn Wieś, dobry i wygodny dojazd zapewniający komfortową komunikację.
Dom jest przy drodze asfaltowej .
Działka o powierzchni 830 m2, w około domu jest dużo terenu, który można zagospodarować.
Na działce znajduje się zbiornik na ścieki, który można opróżnić bez wjeżdżania na działkę.
W okolicy powstało już kilka nowych domów, jest to małe osiedle o niezbyt ścisłej zabudowie.
Dużo terenów zielonych, rzeka w pobliżu. Widok z tarasu jest niezagrożony jakimikolwiek zabudowaniami.
Do Łabiszyna są 3 kilometry a do Bydgoszczy 22 km.
Kursuje autobus szkolny.
Wszystkich zainteresowanych zachęcam do bezpośredniego zapoznania się z ofertą i obejrzenia nieruchomości. Ponieważ nawet najlepsze zdjęcia nie pokażą tego co można zobaczyć w trakcie oglądania tego o czym marzymy, swojego domu.
Dziękuję i pozdrawiam.
ID: 1021428984
Skontaktuj się
xxx xxx xxx
Dodane 23 września 2025
Dom jednorodzinny
459 000 zł
Lokalizacja
Smogorzewo
Kujawsko-pomorskie