Prywatne
Cena za m²: 11658.33 zł/m²
Rynek: Wtórny
Powierzchnia: 120 m²
Powierzchnia działki: 380 m²
Rodzaj zabudowy: Bliźniak
Liczba pięter: Jednopiętrowy
Opis
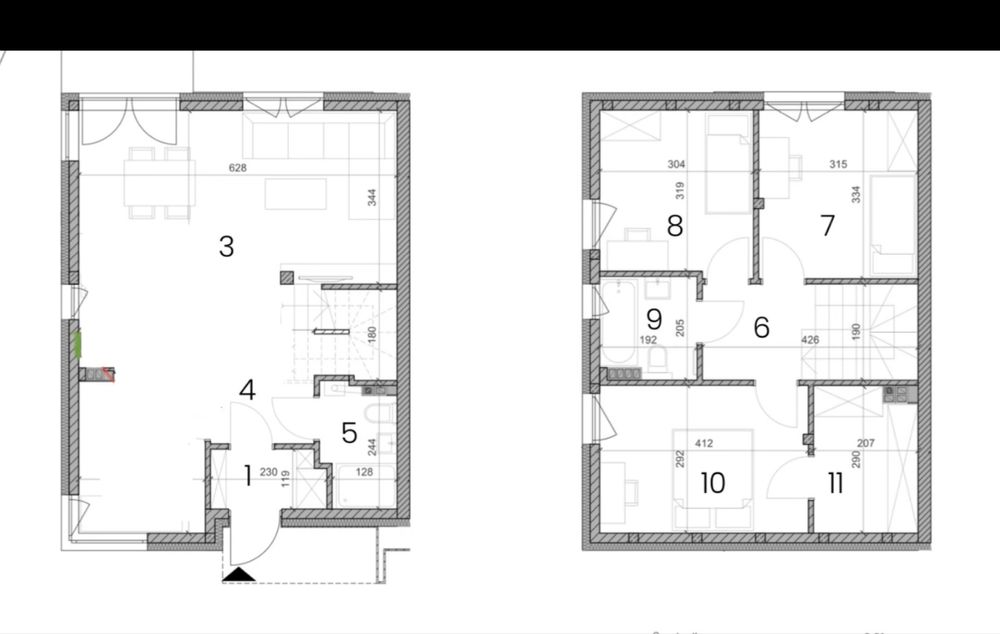
Oferuję na sprzedaż nowoczesny dom w zabudowie bliźniaczej o powierzchni całkowitej 120 m² (rok budowy 2022). Nieruchomość znajduje się na działce o wielkości 380 m². Dom jest jednopiętrowy i wyróżnia się wysokiej jakości wykończeniem.
Na parterze:
- łazienka z prysznicem
- pomieszczenie gospodarcze
- przestronny stylowy salon,
- jasna, w pełni urządzona kuchnia
Na piętrze:
- łazienka z wanną
- trzy sypialnie w tym jedna z dodatkową garderobą i pralnią
Strych: ocieplony pianą PUR
Dach: dachówka ceramiczna, instalacja odgromową, panele fotowoltaiczne
Ogród: harmonijnie zaprojektowany i wykończony. Z wyraźnym podziałem na strefy funkcjonalne. Taras z kostki w kształcie litery L. Pergola aluminiowa z regulowanym dachem. Na terenie posesji dwa domki narzędziowe drewniane.
Podjazd: kostka brukowa, na podjeździe miejsce na 3 samochody z dodatkową przestrzenią dla gości (+2 samochody).
Na wyposażeniu domu m. in.
- fotowoltaika
- monitoring ( 3 kamery zewnętrzne)
- kocioł gazowy dwufunkcyjny Vaillant
- ogrzewanie podłogowe w całym domu
- klimatyzacja (parter)
- stolarka okienna i drzwiowa wysoce energooszczędna
- internet +TV (światłowód)
Okolice:
- najbliższy sklep spożywczy 10 minut pieszo
- dwa markety spożywcze 2-3 minut samochodem
- przystanek komunikacji miejskiej (krakowskiej) 5 min pieszo
- dwie szkoły podstawowe w odległości 2 min samochodem
- trasa krajobrazowa i rowerowa 2 minuty pieszo
Lokalizacja jest bardzo atrakcyjna. W pobliżu znajdują się szkoły, co jest idealne dla rodzin z dziećmi. W okolicy są również place zabaw oraz przystanki komunikacji miejskiej. Dzięki temu, łatwo dostaniesz się do centrum i innych części miasta.
Zapraszam!
Na parterze:
- łazienka z prysznicem
- pomieszczenie gospodarcze
- przestronny stylowy salon,
- jasna, w pełni urządzona kuchnia
Na piętrze:
- łazienka z wanną
- trzy sypialnie w tym jedna z dodatkową garderobą i pralnią
Strych: ocieplony pianą PUR
Dach: dachówka ceramiczna, instalacja odgromową, panele fotowoltaiczne
Ogród: harmonijnie zaprojektowany i wykończony. Z wyraźnym podziałem na strefy funkcjonalne. Taras z kostki w kształcie litery L. Pergola aluminiowa z regulowanym dachem. Na terenie posesji dwa domki narzędziowe drewniane.
Podjazd: kostka brukowa, na podjeździe miejsce na 3 samochody z dodatkową przestrzenią dla gości (+2 samochody).
Na wyposażeniu domu m. in.
- fotowoltaika
- monitoring ( 3 kamery zewnętrzne)
- kocioł gazowy dwufunkcyjny Vaillant
- ogrzewanie podłogowe w całym domu
- klimatyzacja (parter)
- stolarka okienna i drzwiowa wysoce energooszczędna
- internet +TV (światłowód)
Okolice:
- najbliższy sklep spożywczy 10 minut pieszo
- dwa markety spożywcze 2-3 minut samochodem
- przystanek komunikacji miejskiej (krakowskiej) 5 min pieszo
- dwie szkoły podstawowe w odległości 2 min samochodem
- trasa krajobrazowa i rowerowa 2 minuty pieszo
Lokalizacja jest bardzo atrakcyjna. W pobliżu znajdują się szkoły, co jest idealne dla rodzin z dziećmi. W okolicy są również place zabaw oraz przystanki komunikacji miejskiej. Dzięki temu, łatwo dostaniesz się do centrum i innych części miasta.
Zapraszam!
ID: 1041767694
xxx xxx xxx
Dodane 30 listopada 2025
Dom bliźniak wykończony, urokliwa okolica. Rzeszotary.
1 399 000 zł
Lokalizacja
Rzeszotary
Małopolskie