Prywatne
Cena za m²: 22916.67 zł/m²
Rynek: Pierwotny
Powierzchnia: 144 m²
Powierzchnia działki: 100 m²
Rodzaj zabudowy: Bliźniak
Liczba pięter: Dwupiętrowy i więcej
Opis
Sprzedam dom typu bliźniak w Woźniocowie, Kraków - doskonale położony w spokojnej okolicy.
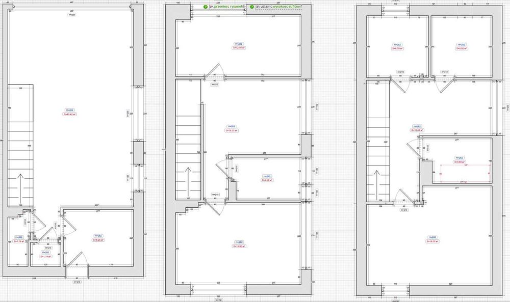
Rozkład pomieszczeń:
Parter: salon z kuchnią, toaleta, kotłownia
I piętro: dwie sypialnie, łazienka, drugi salon
II piętro: sypialnia, łazienka, biuro, pralnia
SZCZEGÓŁY NIERUCHOMOŚCI:
• 3 kondygnacje - każda ok. 48-49m2
• Użytkowy strych
• Łączna powierzchnia: 145m2
• Ogródek: 100m2
• Miejsce postojowe zewnętrzne
• Bez garażu/piwnicy
• Stan wykończania (pod klucz)
• 6 jednostek klimatyzacji
• Cena 3.300.000
Wyposażenie i instalacje:
Ogrzewanie podłogowe na każdym piętrze
Kocioł gazowy z zasobnikiem
Rekuperacja (wentylacja mechaniczna z odzyskiem ciepła)
Fotowoltaika z magazynem energii
Światłowodowy Internet
Meble w trakcie montażu
Taras w budowie
STAN TECHNICZNY:
Dom w stanie wykończania, wymaga ukończenia prac.
LOKALIZACJA:
Woźniców to jeden z najprężej rozwijLOKALIZACJA:
Przystanek tramwajowy i autobusowy: 300 metrów
Szkoła: 250 metrów
Supermarket i Żabka: 500 metrów
Dom znajduje się w cichej, zielonej okolicy – idealnej dla osób szukających spokoju bez rezygnacji z udogodnień miasta. W okolicy pełna infrastruktura – łatwy dostęp do komunikacji miejskiej oraz szkoły i sklepów.
UWAGA:
Oferta przeznaczona wyłącznie dla klientów prywatnych. Prosimy pośredników o niekonkaktowanie się.
Kontakt tylko telefoniczny
Rozkład pomieszczeń:
Parter: salon z kuchnią, toaleta, kotłownia
I piętro: dwie sypialnie, łazienka, drugi salon
II piętro: sypialnia, łazienka, biuro, pralnia
SZCZEGÓŁY NIERUCHOMOŚCI:
• 3 kondygnacje - każda ok. 48-49m2
• Użytkowy strych
• Łączna powierzchnia: 145m2
• Ogródek: 100m2
• Miejsce postojowe zewnętrzne
• Bez garażu/piwnicy
• Stan wykończania (pod klucz)
• 6 jednostek klimatyzacji
• Cena 3.300.000
Wyposażenie i instalacje:
Ogrzewanie podłogowe na każdym piętrze
Kocioł gazowy z zasobnikiem
Rekuperacja (wentylacja mechaniczna z odzyskiem ciepła)
Fotowoltaika z magazynem energii
Światłowodowy Internet
Meble w trakcie montażu
Taras w budowie
STAN TECHNICZNY:
Dom w stanie wykończania, wymaga ukończenia prac.
LOKALIZACJA:
Woźniców to jeden z najprężej rozwijLOKALIZACJA:
Przystanek tramwajowy i autobusowy: 300 metrów
Szkoła: 250 metrów
Supermarket i Żabka: 500 metrów
Dom znajduje się w cichej, zielonej okolicy – idealnej dla osób szukających spokoju bez rezygnacji z udogodnień miasta. W okolicy pełna infrastruktura – łatwy dostęp do komunikacji miejskiej oraz szkoły i sklepów.
UWAGA:
Oferta przeznaczona wyłącznie dla klientów prywatnych. Prosimy pośredników o niekonkaktowanie się.
Kontakt tylko telefoniczny
ID: 1032507104
xxx xxx xxx
Dodane 16 października 2025
Dom bliźniak 145m2, Woźniców Kraków
3 300 000 zł
Lokalizacja
Kraków, Czyżyny
Małopolskie