Przejdź do głównej części
OLX Christmas Logo
Czat

Powiadomienia

Dodaj ogłoszenie
Dom blisko centrum 80 mkw na działce 375mkw do remontu
Dom blisko centrum 80 mkw na działce 375mkw do remontu
Dom blisko centrum 80 mkw na działce 375mkw do remontu
Dom blisko centrum 80 mkw na działce 375mkw do remontu
Dom blisko centrum 80 mkw na działce 375mkw do remontu
PromujOdśwież

Prywatne

Cena za m²: 3312.5 zł/m²

Rynek: Wtórny

Powierzchnia: 80 m²

Powierzchnia działki: 375 m²

Rodzaj zabudowy: Wolnostojący

Liczba pięter: Parterowy

Opis

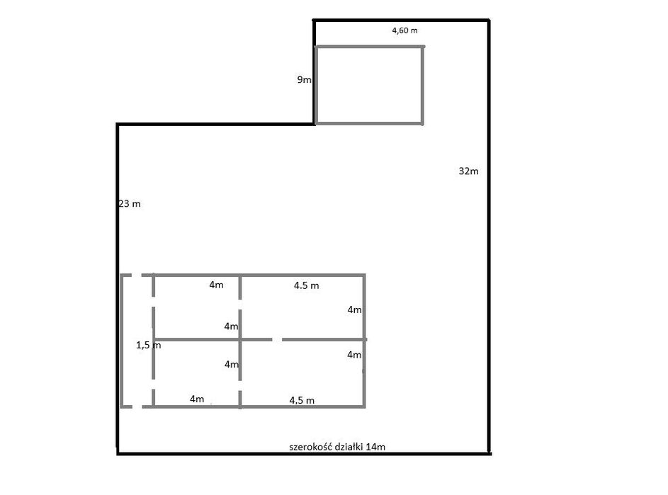
Do sprzedania dom murowany o powierzchni 80 mkw na działce 375 mkw. Dom murowany z cegły białej oraz czerwonej, solidne mury niemal pół metrowej grubości, solidne fundamenty. Mała piwnica, stropy drewniane, dach kryty eternitem, więźba dachowa w stanie bardzo dobrym, solidne porządnie zakonserwowane belki. Ściany wewnętrzne i zewnętrzne oraz stropy w stanie bardzo dobrym, tynki się trzymają, stare okna, podłogi, instalacje. Stoi jednym bokiem w granicy działki, składa się z czterech pomieszczeń, dwa o wymiarach 4 na 4 metry, oraz dwa 4,5 na 4 metry, plus korytarz 1,5m na 8. Ich układ oraz wymiary zostały przedstawione na rysunku poglądowym. Na rysunku również odwzorowany kształt działki oraz oznaczone jej wymiary. Podwórko za domem, na podwórku znajduje się murowana komórka o wymiarach 3 na 6m. Okolica spokojna, spokojni sąsiedzi, blisko do obwodnicy, nieruchomość znajduje się na ulicy Wesołej. W miarę blisko do centrum miasta, niedaleko stacja pks, galeria, castorama, park miejski. Nieruchomość posiada uregulowany stan prawny, założona księga wieczysta, nie jest zadłużona, nie jest obarczona żadnymi służebnościami.
ID: 1012955980

Skontaktuj się

Michał

Na OLX od maj 2018

Ostatnio online w dniu 07 grudnia 2025

xxx xxx xxx

Dodane 11 listopada 2025

Dom blisko centrum 80 mkw na działce 375mkw do remontu

265 000 zł

do negocjacji

Lokalizacja

Location

Ostrowiec Świętokrzyski

Świętokrzyskie

Darmowa aplikacja na Twój telefon