Firmowe
Powierzchnia: 890 m²
Opis
Zapraszamy do zapoznania się z ofertą wynajmu hali magazynowo-produkcyjnej z zapleczem biurowo-socjalnym w Sułkowicach.
Parametry i charakterystyka budynku:
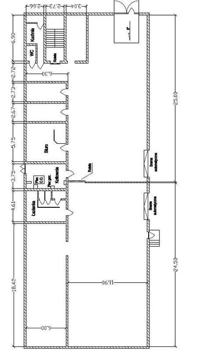
Hala magazynowa/produkcyjna ok 589 m2 podzielona na dwie części lekką ścianką.
Biura, szatnie, pomieszczenia techniczne o łącznej powierzchni 297 m2.
Hala posiada ogrzewanie (piec na eko-groszek), nagrzewy Volcano a dla biur piec gazowy.
W połowie hali wysokość do konstrukcji dachu 7,87m – obniżona ze wzglądów grzewczych do wysokości 4,8m. W drugiej części - biura + pomieszczenia techniczne wysokość 4,5m.
Hala posiada 2 bramy z rampą załadowczą.
Cały teren jest ogrodzony. Wjazd bezpośrednio z drogi publicznej. Wzdłuż budynku plac utwardzony o dużej powierzchni.
Czynsz : 18 000 PLN netto/msc. + media wg. zużycia.
Zainteresowanych klientów zapraszam do kontaktu, a pośredników nieruchomości do współpracy przy wynajmie tej nieruchomości.
Kontakt: Grzegorz 51*******45
Parametry i charakterystyka budynku:
Hala magazynowa/produkcyjna ok 589 m2 podzielona na dwie części lekką ścianką.
Biura, szatnie, pomieszczenia techniczne o łącznej powierzchni 297 m2.
Hala posiada ogrzewanie (piec na eko-groszek), nagrzewy Volcano a dla biur piec gazowy.
W połowie hali wysokość do konstrukcji dachu 7,87m – obniżona ze wzglądów grzewczych do wysokości 4,8m. W drugiej części - biura + pomieszczenia techniczne wysokość 4,5m.
Hala posiada 2 bramy z rampą załadowczą.
Cały teren jest ogrodzony. Wjazd bezpośrednio z drogi publicznej. Wzdłuż budynku plac utwardzony o dużej powierzchni.
Czynsz : 18 000 PLN netto/msc. + media wg. zużycia.
Zainteresowanych klientów zapraszam do kontaktu, a pośredników nieruchomości do współpracy przy wynajmie tej nieruchomości.
Kontakt: Grzegorz 51*******45
ID: 1032500594
xxx xxx xxx
Dodane Dzisiaj o 10:41
DO WYNAJĘCIA HALA Magazynowa / HALA Produkcyjna
18 000 zł
Lokalizacja
Sułkowice
Małopolskie