Prywatne
Cena za m²: 11995.6 zł/m²
Poziom: 2
Umeblowane: Nie
Rynek: Wtórny
Rodzaj zabudowy: Kamienica
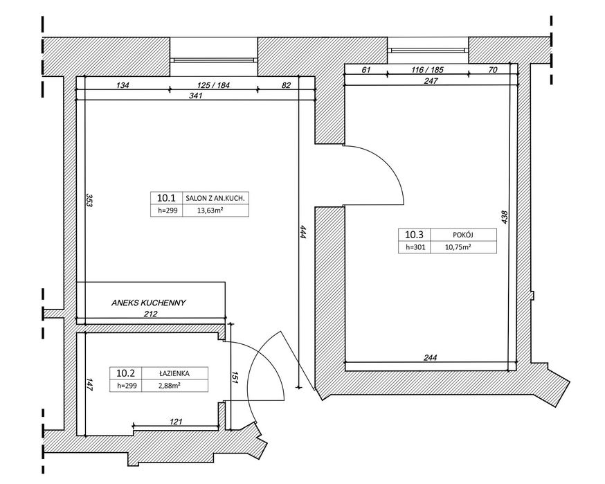
Powierzchnia: 27,26 m²
Liczba pokoi: 2 pokoje
Opis
BEZ PROWIZJI! Najtańsze w tej okolicy mieszkanie do remontu.
27,26 mkw - dwa duże plastikowe okna! Mieszkanie bardzo jasne od części frontowej kamienicy.
-Salon z aneksem
-sypialnia
-łazienka
Kamienica w trakcie rewitalizacji, prace które zostały przeprowadzone lub są w trakcie to:
wymiana instalacji wodno-kanalizacyjnych;
wymiana instalacji elektrycznej;
remont klatki schodowej oraz elewacji od strony dziedzińca;
przeglądy kominiarskie;
doprowadzenie światłowodu;
monitoring oraz domofony.
Jest możliwość wykonania mieszkania pod klucz lub wykonania projektu technicznego.
Mieszkanie idealne dla studentów, singli, par, jako pierwsze M lub inwestycja pod wynajem.
Dużo możliwości aranżacyjnych ze względu na doskonały układ mieszkania!
LOKALIZACJA: Dzielnica Łazarz - najprężniej rozwijająca się dzielnica w Poznaniu!
około 350 metrów od Rynku Łazarskiego
Świetna komunikacja - łatwy dostęp do transportu publicznego oraz kluczowych punktów miasta, 400 m do przystanku MZK Rynek Łazarski
Zaledwie kilometr od Dworca Zachodniego PKP, Parku Wilsona czy Palmiarni i Targów Międzynarodowych.
Ponadto: uczelnie wyższe, szkoły, przedszkola, sklepy i knajpy.
27,26 mkw - dwa duże plastikowe okna! Mieszkanie bardzo jasne od części frontowej kamienicy.
-Salon z aneksem
-sypialnia
-łazienka
Kamienica w trakcie rewitalizacji, prace które zostały przeprowadzone lub są w trakcie to:
wymiana instalacji wodno-kanalizacyjnych;
wymiana instalacji elektrycznej;
remont klatki schodowej oraz elewacji od strony dziedzińca;
przeglądy kominiarskie;
doprowadzenie światłowodu;
monitoring oraz domofony.
Jest możliwość wykonania mieszkania pod klucz lub wykonania projektu technicznego.
Mieszkanie idealne dla studentów, singli, par, jako pierwsze M lub inwestycja pod wynajem.
Dużo możliwości aranżacyjnych ze względu na doskonały układ mieszkania!
LOKALIZACJA: Dzielnica Łazarz - najprężniej rozwijająca się dzielnica w Poznaniu!
około 350 metrów od Rynku Łazarskiego
Świetna komunikacja - łatwy dostęp do transportu publicznego oraz kluczowych punktów miasta, 400 m do przystanku MZK Rynek Łazarski
Zaledwie kilometr od Dworca Zachodniego PKP, Parku Wilsona czy Palmiarni i Targów Międzynarodowych.
Ponadto: uczelnie wyższe, szkoły, przedszkola, sklepy i knajpy.
ID: 1039276468
xxx xxx xxx
Dodane Dzisiaj o 04:28
Do remontu! Łazarz, 2 pokoje, 2 piętro, pełna rewitalizacja kamienicy
327 000 zł
Lokalizacja
Poznań, Łazarz
Wielkopolskie