Firmowe
Cena za m²: 9259.51 zł/m²
Poziom: 1
Umeblowane: Tak
Rynek: Wtórny
Rodzaj zabudowy: Blok
Powierzchnia: 74,41 m²
Liczba pokoi: 3 pokoje
Opis
2 miejsca parkingowe naziemne w cenie
Wydanie Kiecień 2026r
Do sprzedania mieszkanie położone pomiędzy Baninem a Miszewem -administracyjnie Dąbrowa os Nowe Banino na pierwszym piętrze w budynku jednopiętrowym.
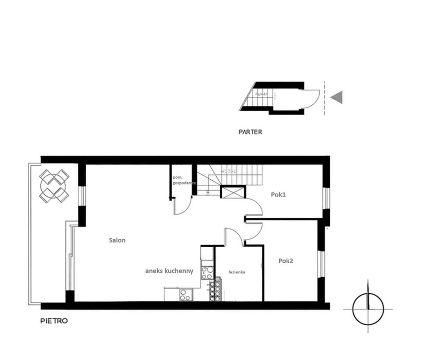
Mieszkanie ma powierzchnię całkowitą 74,41m2
Pierwotnie miało 4 pokoje co z łatwością można odtworzyć.
Aktualnie składa sie z :
Pokoju o pow 8,9m2
Sypialni o pow 10.44
Salonu z aneksem kuchennym o pow 35,43 m2
Przedpokoju 7,47m2
łazienki 4,86
pomieszczenia gospodarczego 1,48m2
wiatrołapu ze schodami 5,83m2
Salon od strony zachodniej z wyjściem na duży częściowo zadaszony taras.
Kuchnia w zabudowie ze sprzętami AGD w cenie. Wyspa kuchenna która jest ruchoma i można ją przesuwać.
W mieszkaniu sporo miejsca do przechowywania, w przedpokoju szafa oraz pomieszczenie gospodarcze
Wejście do budynku ogrodzone , drzwi wejściowe antywłamaniowe.
Miesięczne koszty administarcyjne to ok 300zł
Dąbrowa to miejscowość pomiędzy Baninem a Miszewem z bardzo dobrym dojazdem do trójmiasta wjazd na trasę kaszubską zajmuje 5 minut . W najbliższej okolicy liczne punkty usługowe, sklep spożywczy, przedszkole.
Wydanie Kiecień 2026r
Do sprzedania mieszkanie położone pomiędzy Baninem a Miszewem -administracyjnie Dąbrowa os Nowe Banino na pierwszym piętrze w budynku jednopiętrowym.
Mieszkanie ma powierzchnię całkowitą 74,41m2
Pierwotnie miało 4 pokoje co z łatwością można odtworzyć.
Aktualnie składa sie z :
Pokoju o pow 8,9m2
Sypialni o pow 10.44
Salonu z aneksem kuchennym o pow 35,43 m2
Przedpokoju 7,47m2
łazienki 4,86
pomieszczenia gospodarczego 1,48m2
wiatrołapu ze schodami 5,83m2
Salon od strony zachodniej z wyjściem na duży częściowo zadaszony taras.
Kuchnia w zabudowie ze sprzętami AGD w cenie. Wyspa kuchenna która jest ruchoma i można ją przesuwać.
W mieszkaniu sporo miejsca do przechowywania, w przedpokoju szafa oraz pomieszczenie gospodarcze
Wejście do budynku ogrodzone , drzwi wejściowe antywłamaniowe.
Miesięczne koszty administarcyjne to ok 300zł
Dąbrowa to miejscowość pomiędzy Baninem a Miszewem z bardzo dobrym dojazdem do trójmiasta wjazd na trasę kaszubską zajmuje 5 minut . W najbliższej okolicy liczne punkty usługowe, sklep spożywczy, przedszkole.
ID: 1045776707
Skontaktuj się
xxx xxx xxx
Dodane 22 grudnia 2025
Dąbrowa koło Banina 2 miejsca parkingowe w cenie mieszkania
689 000 zł
Lokalizacja
Banino
Pomorskie