Przejdź do głównej części
Czat

Powiadomienia

Dodaj ogłoszenie
Budynek 90m2 z płyt warstwowych
Budynek 90m2 z płyt warstwowych
Budynek 90m2 z płyt warstwowych
Budynek 90m2 z płyt warstwowych
Budynek 90m2 z płyt warstwowych
Budynek 90m2 z płyt warstwowych
Budynek 90m2 z płyt warstwowych
Budynek 90m2 z płyt warstwowych
Budynek 90m2 z płyt warstwowych
Budynek 90m2 z płyt warstwowych
Budynek 90m2 z płyt warstwowych
PromujOdśwież

Prywatne

Stan: Używane

Opis

Sprzedam budynek z płyt warstwowych, o powierzchni użytkowej ok. 90m2.
Ściany i dach z płyt gr. 10cm. Konstrukcja wzmocniona belkami stalowymi.
Wysokość: 2.15-2.30 (dach ze spadem).
Budynek użytkowany przez około 11lat.
Budynek do przeniesienia.
Demontaż, transport we własnym zakresie.

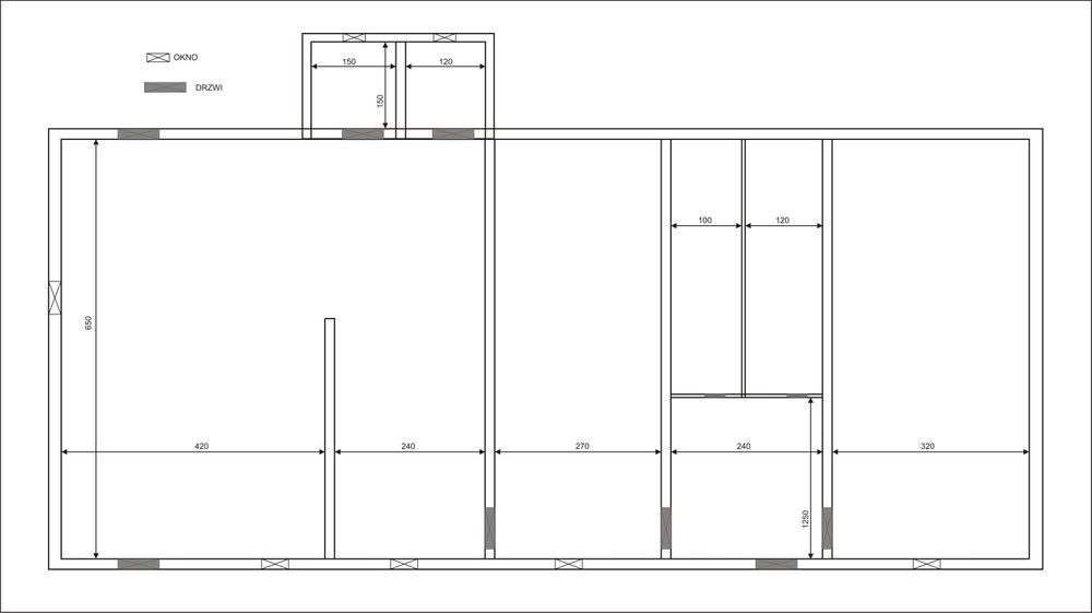
Powierzchnia: ok. 90m2. (6x15m).
Ścianki działowe z płyt gk. Łącznie 8 pomieszczeń w tym 2x łazienka i toaleta. Układ pomieszczeń jest przedstawiony na jednym ze zdjęć.

Sprzedaję bez wyposażenia widocznego na zdjęciach, tzn. same ściany, okna, drzwi...
ID: 1046011719

Skontaktuj się

Facebook connected icon

Jacek

Na OLX od czerwiec 2016

Ostatnio online w dniu 15 lutego 2026

xxx xxx xxx

Dodane 23 stycznia 2026

Budynek 90m2 z płyt warstwowych

26 500 zł

Lokalizacja

Darmowa aplikacja na Twój telefon