Prywatne
Cena za m²: 7527.4 zł/m²
Rynek: Pierwotny
Powierzchnia: 146 m²
Powierzchnia działki: 1 100 m²
Rodzaj zabudowy: Bliźniak
Liczba pięter: Parterowy z użytkowym poddaszem
Opis
Firma KP-Invest proponuje bliźniaki w Tomaszkowie, w sąsiedztwie lasu oraz naszych domów przy ul. Myśliwskiej.
Można wybrać działkę z pośród tych zaznaczonych na zielono. Teren lasu zaznaczony na żółto będzie sprzedany w udziałach do każdej z zabudowanych działek. Teren ten jest objęty w MPZP jako tereny zielone więc mamy gwarancję, że nikt go nie wykorzysta pod zabudowę.
Bliźniaki ze zdjęć można obejrzeć na żywo w Bartągu przy ul. Orzechowej - dokładnie takie będą budowane w Tomaszkowie.
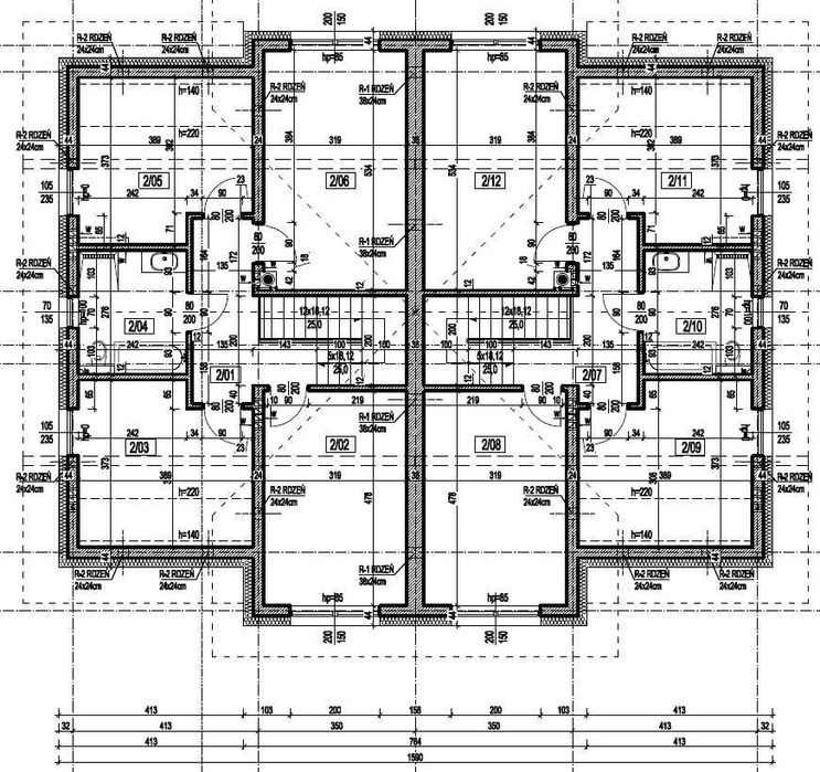
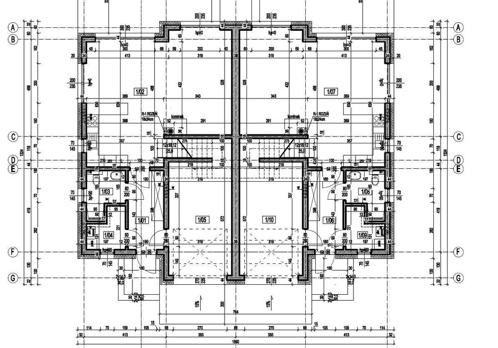
Dom ma 4 sypialnie - powierzchnia użytkowa domu to około 146m2 (łącznie z garażem jednostanowiskowym w bryle).
Dom w stanie deweloperskim, posiada m.in.:
- pompę ciepła firmy DAIKIN,
- przyłącza wod-kan, oraz elektroenergetyczne,
-dach pokryty dachówką ceramiczną, na pełnym deskowaniu,
-elewacja - styropian gr. 20cm + tynk silikonowy barwiony w masie,
- podbitka
- utwardzenia z kostki brukowej w ilości około 120m2 do każdej połówki,
- wewnętrzna inst. elektryczna, wod-kan oraz c.o.
- w całym domu ogrzewanie podłogowe,
- tynki maszynowe,
- posadzki cementowe,
- zabudowa poddasza z płyt GK, wraz ze szpachlowaniem łączeń,
- podłoga z OSB tworząca stryszek około 25m2
- działka ogrodzona z trzech stron,
- okna w kolorze obustronnym, w tym okno tarasowe przesuwne HST.
Można wybrać działkę z pośród tych zaznaczonych na zielono. Teren lasu zaznaczony na żółto będzie sprzedany w udziałach do każdej z zabudowanych działek. Teren ten jest objęty w MPZP jako tereny zielone więc mamy gwarancję, że nikt go nie wykorzysta pod zabudowę.
Bliźniaki ze zdjęć można obejrzeć na żywo w Bartągu przy ul. Orzechowej - dokładnie takie będą budowane w Tomaszkowie.
Dom ma 4 sypialnie - powierzchnia użytkowa domu to około 146m2 (łącznie z garażem jednostanowiskowym w bryle).
Dom w stanie deweloperskim, posiada m.in.:
- pompę ciepła firmy DAIKIN,
- przyłącza wod-kan, oraz elektroenergetyczne,
-dach pokryty dachówką ceramiczną, na pełnym deskowaniu,
-elewacja - styropian gr. 20cm + tynk silikonowy barwiony w masie,
- podbitka
- utwardzenia z kostki brukowej w ilości około 120m2 do każdej połówki,
- wewnętrzna inst. elektryczna, wod-kan oraz c.o.
- w całym domu ogrzewanie podłogowe,
- tynki maszynowe,
- posadzki cementowe,
- zabudowa poddasza z płyt GK, wraz ze szpachlowaniem łączeń,
- podłoga z OSB tworząca stryszek około 25m2
- działka ogrodzona z trzech stron,
- okna w kolorze obustronnym, w tym okno tarasowe przesuwne HST.
ID: 1029379965
xxx xxx xxx
Dodane 19 października 2025
Bliźniaki Tomaszkowo KP-Invest - otoczenie lasu, 4 sypialnie
1 099 000 zł
do negocjacji
Lokalizacja
Tomaszkowo
Warmińsko-mazurskie