Firmowe
Poziom: 1
Powierzchnia: 88 m²
Przeznaczenie lokalu: Biurowe
Opis
Oferta wynajmu lokalu przy Al. Niepodległości 809 A Sopot (I piętro)
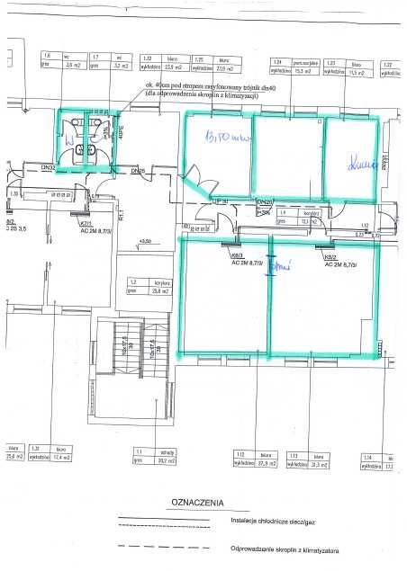
- 88 m. kw. powierzchni biurowej w tym pomieszczenia połączone drzwiami wewnętrznymi: 27,90 m.kw; 31,30 m.kw, 13,5 m.kw, 15,3 m.kw
- Toalety wraz z kuchnią do wspólnego użytkowania
Powierzchnia biurowa 809A wynosi 88 m. kw..
- 4 miejsca postojowe (w tym z tyłu budynku)
- czynsz: 3654 zł netto/m-c + opłaty za media (woda, gaz, śmieci, monitoring, ochrona, prąd, sprzątanie części wspólnych)
Średnia opłata za media 27 zł za m. kw. powierzchni biurowej.
Średnia opłata za ogrzewanie 34 zł za m. kw. zimą, 20 zł za m. kw. latem.
W kwocie nie jest uwzględnione sprzątanie biura, Internet oraz prąd (prąd płatny według zużycia z licznika
- 88 m. kw. powierzchni biurowej w tym pomieszczenia połączone drzwiami wewnętrznymi: 27,90 m.kw; 31,30 m.kw, 13,5 m.kw, 15,3 m.kw
- Toalety wraz z kuchnią do wspólnego użytkowania
Powierzchnia biurowa 809A wynosi 88 m. kw..
- 4 miejsca postojowe (w tym z tyłu budynku)
- czynsz: 3654 zł netto/m-c + opłaty za media (woda, gaz, śmieci, monitoring, ochrona, prąd, sprzątanie części wspólnych)
Średnia opłata za media 27 zł za m. kw. powierzchni biurowej.
Średnia opłata za ogrzewanie 34 zł za m. kw. zimą, 20 zł za m. kw. latem.
W kwocie nie jest uwzględnione sprzątanie biura, Internet oraz prąd (prąd płatny według zużycia z licznika
ID: 1039306640
