Firmowe
Poziom: 1
Powierzchnia: 245 m²
Przeznaczenie lokalu: Biurowe
Opis
Do wynajęcia powierzchnia biurowa – 245 m², Praga Południe - bezpośrednio bez pośredników.
Oferujemy do wynajęcia nowoczesną powierzchnię biurową o łącznej wielkości 245 m², zlokalizowaną w doskonałym punkcie komunikacyjnym na Pradze Południe, w pobliżu pętli autobusowej na Gocławiu.
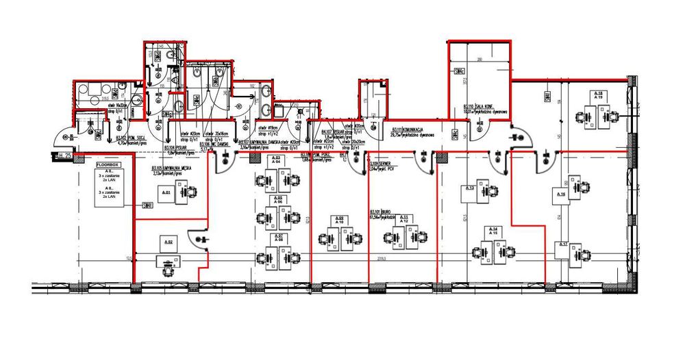
Układ powierzchni:
• 7 przestronnych pokoi biurowych (każdy z indywidualną klimatyzacją, oknem z możliwością otwarcia i żaluzjami)
• recepcja
• salka konferencyjna
• kuchnia
• 2 toalety (damska i męska)
• serwerownia
• pomieszczenie gospodarcze
Standard biura:
• podłoga modułowa z floor boxami
• klimatyzacja
• dostęp do światła dziennego we wszystkich pokojach
Dodatkowe atuty:
• miejsca parkingowe dla najemców
• doskonała lokalizacja – szybki dojazd do centrum oraz innych dzielnic Warszawy
• sąsiedztwo komunikacji miejskiej (blisko pętla autobusowa na Gocławiu)
Powierzchnia idealna dla firm poszukujących wygodnej i funkcjonalnej przestrzeni biurowej w świetnej lokalizacji.
Możliwość wynajęcia również biura o powierzchni 500 metrów w tej samej lokalizacji.
Oferujemy do wynajęcia nowoczesną powierzchnię biurową o łącznej wielkości 245 m², zlokalizowaną w doskonałym punkcie komunikacyjnym na Pradze Południe, w pobliżu pętli autobusowej na Gocławiu.
Układ powierzchni:
• 7 przestronnych pokoi biurowych (każdy z indywidualną klimatyzacją, oknem z możliwością otwarcia i żaluzjami)
• recepcja
• salka konferencyjna
• kuchnia
• 2 toalety (damska i męska)
• serwerownia
• pomieszczenie gospodarcze
Standard biura:
• podłoga modułowa z floor boxami
• klimatyzacja
• dostęp do światła dziennego we wszystkich pokojach
Dodatkowe atuty:
• miejsca parkingowe dla najemców
• doskonała lokalizacja – szybki dojazd do centrum oraz innych dzielnic Warszawy
• sąsiedztwo komunikacji miejskiej (blisko pętla autobusowa na Gocławiu)
Powierzchnia idealna dla firm poszukujących wygodnej i funkcjonalnej przestrzeni biurowej w świetnej lokalizacji.
Możliwość wynajęcia również biura o powierzchni 500 metrów w tej samej lokalizacji.
ID: 1028300647
xxx xxx xxx
Dodane 15 października 2025
Biuro 245 lub 500 metrów na wynajem Warszawa Kosmatki Gocław Wawer
18 000 zł
Lokalizacja
Warszawa, Praga-Południe
Mazowieckie