Prywatne
Cena za m²: 11015.12 zł/m²
Poziom: 2
Umeblowane: Nie
Rynek: Wtórny
Rodzaj zabudowy: Blok
Powierzchnia: 46,30 m²
Liczba pokoi: 3 pokoje
Opis
Na sprzedaż ciche, funkcjonalne i jasne 3-pokojowe mieszkanie (46,30m² położone na 2 piętrze przy ulicy Wojciechowskiego 40, w Warszawa - Ursus. Zlokalizowane w świetnie skomunikowanym miejscu. Bliskość stacji PKP \\ SKM (dojazd do centrum w 15 minut) i przystanków autobusowych (187, 194). w obrębie 5 minut znajdują się wszystkie udogodnienia i usługi (szkoła, przedszkole, żłobek, sklepy, punkty usługowe i gastronomiczne). Do tego Park Hassów, basen Albatros. Innymi słowy, w zasięgu ręki znajdują się wszystkie punkty i usługi do wygodnego życia, bez potrzeby korzystania z samochodu i komunikacji publicznej.
Mieszkanie wymagana generalnego remontu, co wbrew pozorom jest jego atutem. Choć obecnie na zdjęciach może nie wygląda atrakcyjnie, to właśnie pozwala na duże zmiany w aranżacji i zaplanowaniu układu mieszkania. Przestronny aneks kuchenny z salonem? Może większa łazienka? Dwie funkcjonalne zabudowy lub bardziej przestronny przedpokój? Dwie funkcjonalne sypialnie, a może duża sypialnia z garderobą? Możliwości są duże i pozwalają na aranżację i wykończenie w pełni pod siebie i swoje potrzeby i oczekiwania.
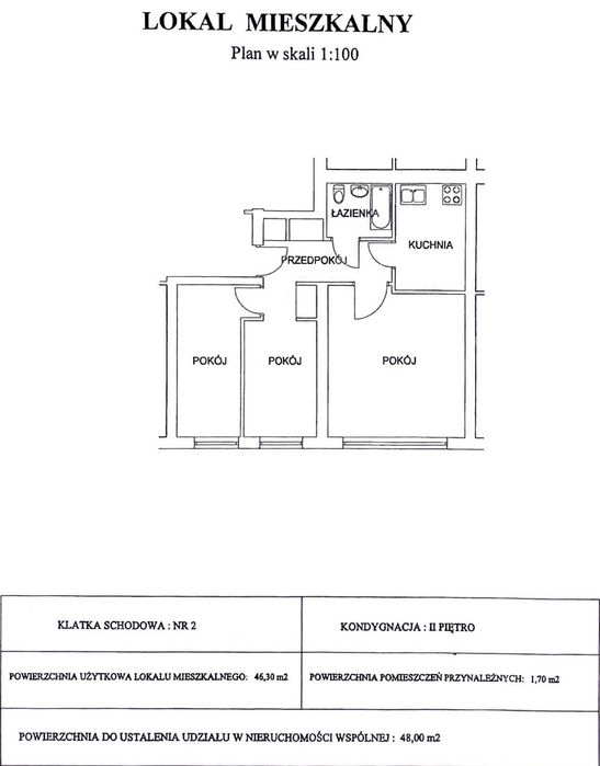
Opis mieszkania:\
Lokalizacja: ul. Wojciechowskiego 40, Warszawa - Ursus Niedźwiadek\
Powierzchnia: 46,30m²\
Piętro: 2 z 4\
Pomieszczenia:
- salon
- 2 sypialnie
- kuchnia \\ aneks kuchenny
- łazienka
- przedpokój\
Komórka lokatorska: do mieszkania przynależy komórka lokatorska w piwnicy o pow. 1,70m²\
Spółdzielnia: RSM Ursus
Zapraszam do kontaktu. To mieszkanie to świetna okazja dla osób, które szukają spokojnej dobrze skomunikowanej lokalizacji z możliwością aranżacji mieszkania bez żadnych kompromisów.
Zapraszam do kontaktu.
Mieszkanie wymagana generalnego remontu, co wbrew pozorom jest jego atutem. Choć obecnie na zdjęciach może nie wygląda atrakcyjnie, to właśnie pozwala na duże zmiany w aranżacji i zaplanowaniu układu mieszkania. Przestronny aneks kuchenny z salonem? Może większa łazienka? Dwie funkcjonalne zabudowy lub bardziej przestronny przedpokój? Dwie funkcjonalne sypialnie, a może duża sypialnia z garderobą? Możliwości są duże i pozwalają na aranżację i wykończenie w pełni pod siebie i swoje potrzeby i oczekiwania.
Opis mieszkania:\
Lokalizacja: ul. Wojciechowskiego 40, Warszawa - Ursus Niedźwiadek\
Powierzchnia: 46,30m²\
Piętro: 2 z 4\
Pomieszczenia:
- salon
- 2 sypialnie
- kuchnia \\ aneks kuchenny
- łazienka
- przedpokój\
Komórka lokatorska: do mieszkania przynależy komórka lokatorska w piwnicy o pow. 1,70m²\
Spółdzielnia: RSM Ursus
Zapraszam do kontaktu. To mieszkanie to świetna okazja dla osób, które szukają spokojnej dobrze skomunikowanej lokalizacji z możliwością aranżacji mieszkania bez żadnych kompromisów.
Zapraszam do kontaktu.
ID: 1033988041
xxx xxx xxx
Dodane 23 października 2025
3-pokojowe mieszkanie z potencjałem (46,3m²) - Warszawa Ursus
510 000 zł
do negocjacji
Lokalizacja
Warszawa, Ursus
Mazowieckie