Firmowe
Cena za m²: 11000 zł/m²
Poziom: 1
Umeblowane: Nie
Rynek: Wtórny
Rodzaj zabudowy: Kamienica
Powierzchnia: 60,88 m²
Liczba pokoi: 2 pokoje
Opis
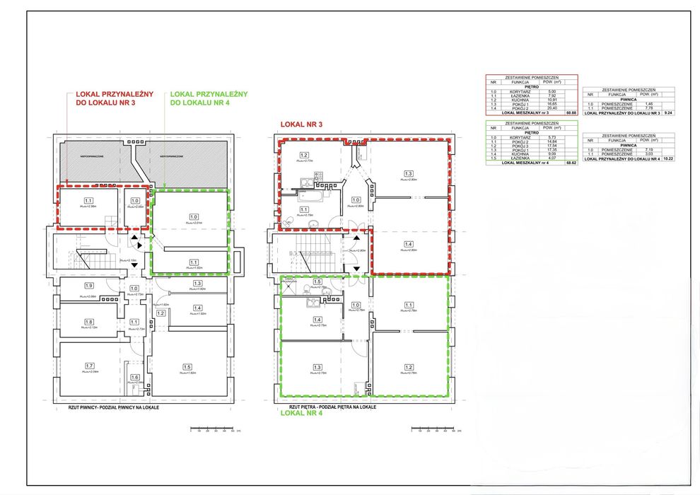
Mieszkanie nr położone jest w kameralnej kamienicy przy ul. Ściegiennego 77 w Poznaniu. Lokal o powierzchni 60,88 m² charakteryzuje się funkcjonalnym i czytelnym układem pomieszczeń, umożliwiającym zarówno komfortowe zamieszkanie, jak i atrakcyjne wykorzystanie inwestycyjne.
Rozkład pomieszczeń:
• pokój dzienny
• sypialnia
• oddzielna kuchnia
• łazienka
• przedpokój
Bezpośrednio nad mieszkaniem znajduje się przynależne pomieszczenie strychowe - lokal nr 7, które może zostać wykorzystane jako antresola lub – po uzyskaniu odpowiednich zgód i pozwoleń - pozwala na podniesienie wysokości i wydzielenie dodatkowej kawalerki. Daje to realną możliwość zwiększenia powierzchni użytkowej bez ponoszenia kosztu zakupu dodatkowych metrów.
Do mieszkania przynależy piwnica, zapewniająca dodatkową przestrzeń do przechowywania.
Dodatkowym atutem nieruchomości jest 1/4 udziału w ogrodzie, stanowiącego rzadko spotykaną wartość dodaną w tej części miasta. Lokalizacja zapewnia dobrą komunikację z centrum oraz dostęp do pełnej infrastruktury miejskiej.
Istnieje również możliwość zakupu mieszkania 3 pokojowego w tej samej lokalizacji.
Informacje zawarte w ogłoszeniu mają charakter wyłącznie informacyjny i nie stanowią oferty w rozumieniu art. 66 §1 Kodeksu cywilnego.
Rozkład pomieszczeń:
• pokój dzienny
• sypialnia
• oddzielna kuchnia
• łazienka
• przedpokój
Bezpośrednio nad mieszkaniem znajduje się przynależne pomieszczenie strychowe - lokal nr 7, które może zostać wykorzystane jako antresola lub – po uzyskaniu odpowiednich zgód i pozwoleń - pozwala na podniesienie wysokości i wydzielenie dodatkowej kawalerki. Daje to realną możliwość zwiększenia powierzchni użytkowej bez ponoszenia kosztu zakupu dodatkowych metrów.
Do mieszkania przynależy piwnica, zapewniająca dodatkową przestrzeń do przechowywania.
Dodatkowym atutem nieruchomości jest 1/4 udziału w ogrodzie, stanowiącego rzadko spotykaną wartość dodaną w tej części miasta. Lokalizacja zapewnia dobrą komunikację z centrum oraz dostęp do pełnej infrastruktury miejskiej.
Istnieje również możliwość zakupu mieszkania 3 pokojowego w tej samej lokalizacji.
Informacje zawarte w ogłoszeniu mają charakter wyłącznie informacyjny i nie stanowią oferty w rozumieniu art. 66 §1 Kodeksu cywilnego.
ID: 1046076901
xxx xxx xxx
Dodane 09 marca 2026
2 pokoje + strych do adaptacji | Ogród | Ściegiennego
669 680 zł
Lokalizacja
Poznań, Górczyn
Wielkopolskie