Firmowe
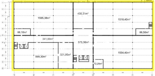
Powierzchnia: 7 575,84 m²
Opis
Hala usługowa magazynowo produkcyjna do wynajęcia – Toruń, ul. Skłodowskiej-Curie, blisko MAKRO
Oferujemy na wynajem przestronną halę o powierzchni 7575,84 m² i wysokości 7,8 m. Hala idealnie nadaje się na działalność magazynową, produkcyjną, usługową lub handlową. Istnieje możliwość wynajęcia większej powierzchni.
Lokalizacja
Obiekt znajduje się w bardzo dobrej lokalizacji, zapewniającej szybki dojazd do centrum Torunia oraz dogodny wyjazd na autostradę A1 i drogi krajowe nr 10 oraz 15.
Charakterystyka obiektu:
• Hala murowana, wykonana w nowoczesnej technologii żelbetowej, zapewniającej trwałość i bezpieczeństwo
• Duża rozpiętość między słupami: 30 m x 18 m
• Wysokość 7,8 m
• Posadzka bezpyłowa (lastriko)
• Oświetlenie dzienne dzięki dużym przeszkleniom, co pozwala na oszczędność energii
• Dostępne media: prąd, woda, kanalizacja, telefon, szybki Internet światłowodowy
• Oddzielne liczniki prądu i wody
• Monitoring całodobowy
Infrastruktura:
• Segmentowe bramy wjazdowe oraz drzwi wejściowe
• Cztery windy towarowo-osobowe o wymiarach 320 x 190 x 200 cm i ładowności 3200 kg
• Trzy klatki schodowe
• Rampa rozładunkowa o szerokości 6 m i długości ponad 120 m, umożliwiająca wjazd pojazdów dostawczych
• Pięć hydraulicznych ramp załadunkowo-rozładunkowych
• Plac manewrowy oraz parking na terenie obiektu
• Waga dla samochodów ciężarowych na terenie posesji
Koszt najmu:
10,00 zł/ m² (+VAT 23%) + opłaty za media rozliczane według wskazań liczników.
Oferta bezpośrednia – bez prowizji i pośredników.
Zapraszamy do kontaktu w celu uzyskania szczegółowych informacji i umówienia prezentacji.
Oferujemy na wynajem przestronną halę o powierzchni 7575,84 m² i wysokości 7,8 m. Hala idealnie nadaje się na działalność magazynową, produkcyjną, usługową lub handlową. Istnieje możliwość wynajęcia większej powierzchni.
Lokalizacja
Obiekt znajduje się w bardzo dobrej lokalizacji, zapewniającej szybki dojazd do centrum Torunia oraz dogodny wyjazd na autostradę A1 i drogi krajowe nr 10 oraz 15.
Charakterystyka obiektu:
• Hala murowana, wykonana w nowoczesnej technologii żelbetowej, zapewniającej trwałość i bezpieczeństwo
• Duża rozpiętość między słupami: 30 m x 18 m
• Wysokość 7,8 m
• Posadzka bezpyłowa (lastriko)
• Oświetlenie dzienne dzięki dużym przeszkleniom, co pozwala na oszczędność energii
• Dostępne media: prąd, woda, kanalizacja, telefon, szybki Internet światłowodowy
• Oddzielne liczniki prądu i wody
• Monitoring całodobowy
Infrastruktura:
• Segmentowe bramy wjazdowe oraz drzwi wejściowe
• Cztery windy towarowo-osobowe o wymiarach 320 x 190 x 200 cm i ładowności 3200 kg
• Trzy klatki schodowe
• Rampa rozładunkowa o szerokości 6 m i długości ponad 120 m, umożliwiająca wjazd pojazdów dostawczych
• Pięć hydraulicznych ramp załadunkowo-rozładunkowych
• Plac manewrowy oraz parking na terenie obiektu
• Waga dla samochodów ciężarowych na terenie posesji
Koszt najmu:
10,00 zł/ m² (+VAT 23%) + opłaty za media rozliczane według wskazań liczników.
Oferta bezpośrednia – bez prowizji i pośredników.
Zapraszamy do kontaktu w celu uzyskania szczegółowych informacji i umówienia prezentacji.
ID: 973017304
xxx xxx xxx
Dodane 19 października 2025
10,00 zł/ m2 HALA usługowa/ magazynowa/ produkcyjna 7 575,84 m2 Toruń
75 750 zł
Lokalizacja
Toruń
Kujawsko-pomorskie